H1222 Taş Toprak Ayıklama Randıman Makinesi



H1222 Taş Toprak Ayıklama Randıman Makinesi



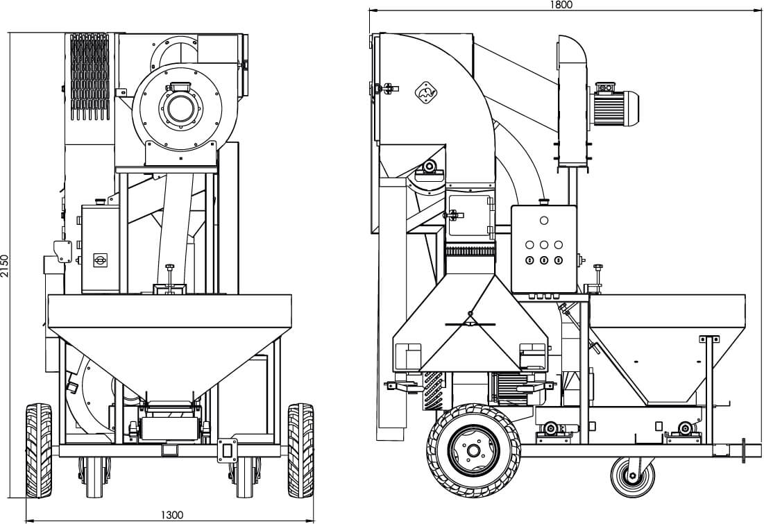
Açıklama: Fındık içerisindeki taş, toprak, kırık, boş, çürük ve içi yarı dolu fındıkları etkili şekilde ayıklayan H1222 modeli, yüksek verimlilikle çalışan modern bir makinadır. 220V elektrik ile çalışan H1222, mobil yapısı sayesinde kolay taşınabilir. Saatte 1750 – 2000 kg fındık ayıklama kapasitesiyle, fındık üreticilerine zaman ve kalite kazandırır. Yüksek randımanlı fındık satmak isteyen çiftçiler için ideal çözümdür.



Teknik Özellikler



Güç Kaynağı 220 V
Ayıklama Kapasitesi 1750 – 2000 kg / saat
Makine Ağırlığı 350 kg


Teknik Çizim

Teknik Çizim

Doküman



H4000 Ağaç Silkeleme Makinesi
Döküman İçin Tıklayın